Modern nieuwbouwproject in het hart van historisch Antwerpen.
Locatie
Antwerpen, de bruisende diamant aan de stroom, is een stad doordrenkt van geschiedenis, cultuur en gezelligheid. In de Minderbroedersstraat vloeit het rijke Antwerpse verleden samen met een levendige en moderne energie. Zo zijn het majestueuze stadhuis, de imposante Onze-Lieve-Vrouwekathedraal en de schilderachtige Grote Markt terug te vinden op wandelafstand. Maar de Antwerpse binnenstad is niet alleen een museum van het verleden; het is ook een bruisende metropool vol leven en dynamiek. De levendige straten rond dit moderne project zijn gevuld met eindeloze diversiteit aan winkels, boetieks boordevol mode en design, hippe koffietentjes en toprestaurants.
Beschrijving
Dit gloednieuwe project telt 6 units die ruimte en rust uitstralen waarbij natuurlijk daglicht de hoofdrol speelt. De appartementen strekken zich uit over een gelijkvloers en 3 verdiepingen die ook te bereiken zijn met een lift. De gelijkvloerse verdieping bestaat uit een inkomhal voorzien van berging en separaat toilet. Twee slaapkamers en badkamers vooraan, zeer ruime leefruimte met een geïnstalleerde keuken en een heerlijke stadstuin middenin. Achteraan bevindt zich een mastersuite met plaats voor dressing en ensuite badkamer. Tot slot, heb je ook de mogelijkheid om een ondergrondse autostaanplaats(en) en private kelderberging mee aan te kopen. Aan comfort dus geen gebrek!
Specificaties:
- Unieke oppervlaktes met privatieve buitenruimte
- Mogelijkheid tot aankoop ondergrondse autostaanplaats(en) en kelderberging
- Gemeenschappelijke fietsen- en vuilnisberging
- Zonnepanelen voorzien
- Gegeerde locatie
- Nieuwbouw, verkoop onder het stelsel van registratierechten (grond) en 21% BTW (constructie) - Op een boogscheut van uitvalswegen
Verplichte Vermeldingen P-score: C, G-score: C EPC en stedenbouw in aanvraag.
Locatie
Antwerpen, de bruisende diamant aan de stroom, is een stad doordrenkt van geschiedenis, cultuur en gezelligheid. In de Minderbroedersstraat vloeit het rijke Antwerpse verleden samen met een levendige en moderne energie. Zo zijn het majestueuze stadhuis, de imposante Onze-Lieve-Vrouwekathedraal en de schilderachtige Grote Markt terug te vinden op wandelafstand. Maar de Antwerpse binnenstad is niet alleen een museum van het verleden; het is ook een bruisende metropool vol leven en dynamiek. De levendige straten rond dit moderne project zijn gevuld met eindeloze diversiteit aan winkels, boetieks boordevol mode en design, hippe koffietentjes en toprestaurants.
Beschrijving
Dit gloednieuwe project telt 6 units die ruimte en rust uitstralen waarbij natuurlijk daglicht de hoofdrol speelt. De appartementen strekken zich uit over een gelijkvloers en 3 verdiepingen die ook te bereiken zijn met een lift. De gelijkvloerse verdieping bestaat uit een inkomhal voorzien van berging en separaat toilet. Twee slaapkamers en badkamers vooraan, zeer ruime leefruimte met een geïnstalleerde keuken en een heerlijke stadstuin middenin. Achteraan bevindt zich een mastersuite met plaats voor dressing en ensuite badkamer. Tot slot, heb je ook de mogelijkheid om een ondergrondse autostaanplaats(en) en private kelderberging mee aan te kopen. Aan comfort dus geen gebrek!
Specificaties:
- Unieke oppervlaktes met privatieve buitenruimte
- Mogelijkheid tot aankoop ondergrondse autostaanplaats(en) en kelderberging
- Gemeenschappelijke fietsen- en vuilnisberging
- Zonnepanelen voorzien
- Gegeerde locatie
- Nieuwbouw, verkoop onder het stelsel van registratierechten (grond) en 21% BTW (constructie) - Op een boogscheut van uitvalswegen
Verplichte Vermeldingen P-score: C, G-score: C EPC en stedenbouw in aanvraag.
Lees meer
51.22265
4.40504
8530130
Stijlvol wonen in de Antwerpse binnenstad
Antwerpen
https://skarabeemediaweblink.b-cdn.net/Public/FileStore.ashx?reference=097205032190118138008141113025204116253026150063&noError=true
https://www.walls.be/uploads/icons/map-marker.svg
51.21553368402761
4.329449863405684
't Perronneke
Eten & drinken
51.16476202315248
4.389246812613497
Speeltuin Uitspanningstraat
Parken
51.22045927794372
4.362425209073421
P&R Linkeroever
Openbaar vervoer
51.241163204930984
4.4075857351156
Havenhuis Port of Antwerp-Bruges
Hotspots
51.23706014298147
4.442408491216052
Mangevie
Eten & drinken
51.21302991360104
4.40509671268301
Mechelseplein
Hotspots
51.166225342639706
4.348271588394309
Fort 8
Cultuur
51.20281107366403
4.350012907344294
Chef's Table - burcht
Eten & drinken
51.24230506932935
4.43985321054825
Restaurant Tot Straks
Eten & drinken
51.219326069773814
4.4209334819904695
Chocolate Nation
Cultuur
51.19908912918829
4.4590247838455195
't Koffiemieke
Eten & drinken
51.24626604451923
4.416261058858863
Kinepolis Antwerpen
Cultuur
51.21878037194339
4.417283878277774
UGC
Cultuur
51.199451447834505
4.433848364511875
Syntra AB campus Antwerpen
Onderwijs
51.20582715933921
4.43258815287361
Draakplaats
Hotspots
51.23968810884538
4.445753951076492
Speeltuin Borrewaterstraat
Parken
51.231795442381056
4.423733410827828
Gå Nord
Eten & drinken
51.20943478448933
4.439215339663083
Zwembad Plantin Moretus
Cultuur
Gemeentehuis Zwijndrecht
Cultuur
51.211735834836276
4.3911610594568895
Zuiderpershuis
Cultuur
51.22227351688256
4.396828338930933
Veerboot naar Linkeroever
Openbaar vervoer
51.21584035985875
4.367052968500078
Galgenweel Park
Parken
51.23360067841891
4.368517893755125
Sint-Annabos
Parken
51.17271283202156
4.39437803937987
Gourmandise
Eten & drinken
51.25064431673685
4.4426006854185
Sportcentrum De Rode Loop
Cultuur
51.18055898092476
4.381588597052679
Stedelijke Basisschool De Letter
Onderwijs
51.20032651639042
4.430505610545527
Bar'rique
Eten & drinken
51.160585462948205
4.395588490017708
Park Van Eeden
Parken
51.24900665226905
4.446697439384784
Tea bar L’arteasan
Eten & drinken
51.250934380636544
4.437699666534366
Schouwburg Noord
Cultuur
51.23153512521793
4.391284881991192
Vrije basisschool Sint-Anna Goethe
Onderwijs
51.17733831871273
4.415921126170984
UAntwerpen – Campus Groenenborger
Onderwijs
51.203715071275596
4.433543298907086
Cogels-Osylei
Hotspots
51.23128746344691
4.441144355852301
Sportpaleis
Cultuur
51.2171777886225
4.4235450375938035
Zoo van Antwerpen
Cultuur
51.197122988619086
4.442106686507632
The Swirl Bakery
Eten & drinken
51.19965766343135
4.340414601540135
Speeltuin Kerkstraat
Parken
51.23607137442101
4.401674158512986
Droogdokkenpark
Parken
51.18897926495794
4.4444332877924575
Het Prieel
Parken
51.25789410602439
4.446061035322538
Speeltuin Kastanjeboomplein
Parken
51.1960572780005
4.42034579705368
Somista
Eten & drinken
51.234407857683244
4.394859336728753
Padel Club Cabane
Cultuur
51.19098881462424
4.378479146820725
Da Giacomo
Eten & drinken
51.222913128514726
4.401847626173759
Fameus
Cultuur
51.21602089537869
4.406918702401206
Bourla Schouwburg
Cultuur
51.26386849540296
4.452861404652038
Samentuin 't Zwaantje
Hotspots
51.22721620341927
4.450897768500771
Cinema Rix
Cultuur
51.219141867616806
4.431852631715889
Basketbalplein Kerkstraat
Cultuur
51.18500795276493
4.438344447313995
Mercatorpark
Parken
51.184619725516804
4.426999450992124
Tam Tam Foodbar
Eten & drinken
51.21422326771643
4.397660997336624
Kaffeenini
Eten & drinken
51.22193896940239
4.38584921082725
WALLS Vastgoedmakelaars Linkeroever
Hotspots
51.223047656192996
4.4637608396639115
Frituur - Eethuis Violette
Eten & drinken
51.23501587140346
4.393187280135097
Openluchtzwembad De Molen
Cultuur
51.20615194832792
4.43768397812028
Nieuw Zurenborg
Cultuur
51.21638445658223
4.433082268209919
Bar Bakeliet
Eten & drinken
51.18449012389572
4.420422281307343
UAntwerpen Campus Middelheim
Onderwijs
51.24004732367513
4.428590378185759
Hondenpark Blijvoort
Parken
51.219649479742046
4.417458267749829
Franklin Rooseveltplaats
Openbaar vervoer
51.17059002308759
4.401855981707501
Sweet & Salty
Eten & drinken
51.201413610348226
4.346170010162797
Sint-Martinuskerk
Cultuur
51.21540710981171
4.4078925137372424
Arenberg
Cultuur
51.21969175646221
4.411967223648622
AP Lange Nieuwstraat
Onderwijs
51.2021589565489
4.337803439317581
Cinema4You
Hotspots
51.210185380742026
4.456195048153737
Deurne Muggenberg
Openbaar vervoer
51.24410375781619
4.419297711906475
JOYT Antwerpen
Cultuur
51.190817281774926
4.3784852371206116
Shopping Den Tir
Cultuur
51.23731882666629
4.440390581776699
Sportclub Antwerp Giants
Cultuur
51.170448858647134
4.3989816965084385
Sint-Ursula-Instituut Wilrijk
Onderwijs
51.18270007701289
4.394588168498077
Pain Pidou
Eten & drinken
De Mozaïek
Onderwijs
51.24962962957396
4.440333381853213
Runcvoortpark
Parken
51.21817950466117
4.474443776164643
Rozentuin
Hotspots
51.215124423470556
4.408919097336682
Barnini
Eten & drinken
51.21932156510834
4.305607170469609
Zwijndrecht P+R Melsele
Openbaar vervoer
51.24926368091068
4.454936907493722
Standbeeld Joske Vermeulen
Hotspots
51.22903463483263
4.40530309567214
MAS
Cultuur
51.176170984770636
4.319881623997892
Polders van Kruibeke
Hotspots
51.22021312896243
4.420628953153898
China Star Antwerpen - Chinees Dim sum Restaurant
Eten & drinken
51.19134878479221
4.348980222616568
Hobokense Polder
Parken
51.193524921321206
4.3945848831756935
Mastvest
Parken
51.16560441582643
4.3974991123962335
De Lindekes
Eten & drinken
51.174483729164564
4.381749447500166
Voetbalclub Valaarhof
Cultuur
51.18507308439982
4.437771051830258
Speeltuin Herman Vosstraat
Parken
51.20898048608057
4.3942845243165785
KMSKA
Cultuur
51.20676745447265
4.467329510826297
Crumbles Deurne
Eten & drinken
51.19179847747597
4.395908172994226
Da Giacomo
Eten & drinken
51.18221941967688
4.40209576931093
Park Den Brandt
Parken
51.22446861692487
4.356654037880442
Middenvijver
Parken
51.20025297121779
4.412628068499132
Koning Albertpark
Parken
51.21110612498839
4.333695347085924
De Gastronoom (De Vos Youri)
Eten & drinken
51.20160525740492
4.438526736417215
Hondenpark Borsbeeksebrug
Parken
51.246447797061144
4.425043224765729
Antwerpen-Luchtbal
Openbaar vervoer
51.25314294139699
4.458208639385067
't VoorHuys
Eten & drinken
51.22181752376118
4.32991127682143
Hondenweide Den Boomgaard
Parken
51.23088587374944
4.421551777562215
Park Spoor Noord
Parken
51.21436680186784
4.330020671396551
Zwijndrecht
Openbaar vervoer
51.17153756060548
4.370228068456152
Sportcentrum Stuivenberg
Cultuur
51.170163464878684
4.393964267790671
Wilrijk Wintert
Hotspots
51.17811021471544
4.345733616441572
Mega Bounce
Hotspots
51.22774642461625
4.439993162438503
Station Antwerpen-Schijnpoort
Openbaar vervoer
51.18694896600933
4.365994222183322
Blikfabriek
Cultuur
51.21989741409101
4.326632411297553
Zwijndrecht Dorp
Openbaar vervoer
51.18481776710197
4.37399165491939
Okka Restaurant
Eten & drinken
51.237080812955526
4.404146272378154
Instroom
Eten & drinken
51.21595409828896
4.441926783563317
Bar Leon
Eten & drinken
51.229479863712726
4.479816858768545
't Koffekoekske
Eten & drinken
51.198063574778665
4.455981307411747
Foodbar Deprince
Eten & drinken
51.19888357561404
4.44197652403703
Zwembad Groenenhoek
Cultuur
51.21653452900319
4.384886355439405
Cafe Kamyon
Eten & drinken
51.18298703996308
4.408049532518012
Middelheim
Parken
51.216586550320386
4.466859151090321
Rivierenhof
Parken
51.21392096518138
4.40434683966338
Lints
Eten & drinken
51.230333953526234
4.41371346884505
AP Hogeschool - Campus Spoor Noord
Onderwijs
51.23168523089528
4.409778951958499
Bar Tikila
Eten & drinken
51.24564755115321
4.448290811799797
Zulma
Eten & drinken
51.23465812321735
4.4089113613965765
Bar Paniek
Eten & drinken
51.227697841426526
4.404545353355513
Dr. Beer
Eten & drinken
51.18243040748306
4.425777164603222
Da Fellini
Hotspots
51.22940077551576
4.405588742276232
Dellafaille MAS
Eten & drinken
51.22185085079067
4.421271994812864
Bibliotheek Permeke
Hotspots
51.19987609450877
4.431921816915186
Berchem Station
Openbaar vervoer
51.22528395272657
4.418729912683733
Sint-Jansplein
Openbaar vervoer
51.227496408797904
4.422970062435893
Panamarenkohuis
Hotspots
51.21519370538995
4.402360997336675
Cafématic
Eten & drinken
51.18752556121807
4.384705181988544
Bakkerij Charif
Eten & drinken
51.17648163746697
4.315554877295254
De Ceder
Eten & drinken
51.219773527749226
4.387225081990469
Minigolf Linkeroever
Cultuur
51.21680625866834
4.483807610826902
Park Groot Schijn
Parken
51.19668713619814
4.462949512682004
Zwemvijver Boekenberg
Hotspots
51.20098911263607
4.336548697662109
Sportpark De Wallen
Hotspots
51.19812910106066
4.44370442802856
Jardin Public
Eten & drinken
51.21624835872718
4.405034839663501
Domestic bakkerij & high tea
Eten & drinken
51.247472472118886
4.448586097056963
Zwembad Park van Merksem
Cultuur
51.17816402208643
4.346742127007697
The Duke
Eten & drinken
51.25011470883586
4.445045198620186
Park Rozendaal
Parken
51.227949774851695
4.40710034169914
Antwerp Clue Escaperoom
Cultuur
51.22024090806928
4.3815328108271165
Het Taartenhuis Vermeeren
Eten & drinken
51.20258110714721
4.423504141519
The Jane
Eten & drinken
51.18388094887516
4.392299995199921
P+R Olympiade
Openbaar vervoer
51.17113636750524
4.391290751635495
Sporthal De Bist
Cultuur
51.195679687671145
4.363324268729008
The Box Padel
Cultuur
51.202458108925036
4.390449610826045
KDG Campus Zuid
Onderwijs
51.20982891915768
4.390842597336334
Bar Barbure
Eten & drinken
51.180839015092886
4.383636884150769
Cafe Rinconada
Eten & drinken
51.211094808077696
4.37370203412915
Galgenweel, zeilclubs
Cultuur
51.21702196605651
4.39636928966355
Munthof
Parken
51.21947575607118
4.326104757239694
Heilig-Kruiskerk
Cultuur
51.21917626045962
4.401544316643996
Groenplaats
Openbaar vervoer
51.22513766158064
4.317387516417855
Blauwe hoeve
Eten & drinken
51.210366196274414
4.397274726173021
Marnixplaats
Hotspots
51.210595910801224
4.395527155009628
Bun
Eten & drinken
51.21282293086056
4.394150395480194
Kloonies
Eten & drinken
51.19725818083203
4.397720795479233
PIVA
Onderwijs
51.21911698967194
4.3262280776091995
D'Ouwe Werf
Eten & drinken
51.16784749524723
4.310334160317925
Smos & Co
Eten & drinken
51.226810423163414
4.432970084274499
Sportoase Veldstraat
Cultuur
51.18762933629708
4.460940597335013
Luchthaven Deurne
Openbaar vervoer
51.21953158873021
4.332490934803101
De Voogt-Poppe
Eten & drinken
51.1981428859116
4.462686243375021
Boekenbergpark
Parken
51.24016112787036
4.43596668543643
Merksem Bredabaan
Openbaar vervoer
51.20111712326961
4.453776595479515
Te boelaerpark
Parken
51.16258944857124
4.37416870001515
Wielercentrum Antwerpen
Cultuur
51.18720746386105
4.375701355008197
Antwerpen Grens Kiel
Openbaar vervoer
51.16668889536464
4.368205315262675
Kasteel Schoonselhof
Parken
51.186115709952276
4.390771449912878
Stedelijk Lyceum Pestalozzi
Onderwijs
51.1785628726362
4.355269911595522
Bakkerij Boraida
Eten & drinken
51.220391955497746
4.387596856898578
Retro Café bvba
Eten & drinken
51.18033368593945
4.3724198891105095
Hollebeekvallei
Parken
51.21830746048591
4.4009350678311145
KDG Groenplaats
Onderwijs
51.198129131989866
4.425305797053786
Brel
Eten & drinken
51.17305876946208
4.352138731573732
Park Broydenborg
Parken
51.206863381653974
4.4846643581828785
Bowling Stones Wommelgem
Cultuur
51.19235212827361
4.383597372338858
Kielpark
Parken
51.17804361655215
4.392257097052482
Rozenkrans School
Onderwijs
51.157780658204445
4.387427937578468
IKEA Wilrijk
Hotspots
51.216768856211495
4.435724364813156
HOØK
Eten & drinken
51.17802904049954
4.310707928869756
't Pachtgoedhof
Eten & drinken
51.18579936869278
4.436698168216876
Antwerp Padelclub
Cultuur
51.21593676793437
4.431863233061904
BorGerHub
Hotspots
51.23397609935564
4.416762634840017
Kempischdok-Oostkaai
Hotspots
51.17494529015118
4.346745380586477
The Creperoom
Eten & drinken
51.199712353947696
4.4402054084735925
Vlaams Tram- en Autobusmuseum
Cultuur
51.21367487674778
4.4333669910551725
Districtshuis Borgerhout
Hotspots
51.227119630905385
4.418246023651621
Crumbles&Beans
Eten & drinken
51.180719799152065
4.3502182699150564
Klimzaal Blok
Cultuur
51.182021104367024
4.430279424035973
Onze-Lieve-Vrouw instituut Pulhof
Onderwijs
51.20537726690929
4.394960281989605
Nordica 31
Eten & drinken
51.17510381565648
4.40211582279547
De Comptoir
Eten & drinken
51.219652263687436
4.448325626307296
Trix
Cultuur
51.1980760782064
4.389947797335632
Station Antwerpen-Zuid
Openbaar vervoer
51.219949029034396
4.3419606613857455
Zwijndrecht Verbrandendijk
Openbaar vervoer
51.19080981587735
4.428868602596804
Brilschanspark
Parken
51.22948409336629
4.476972543532094
Smouts & Co
Eten & drinken
51.220416025123235
4.399643541520058
Zao Wang
Eten & drinken
51.1909408566908
4.399444397335194
Antwerp Expo
Cultuur
51.19650761346386
4.409938497335535
Café Lucien
Eten & drinken
51.21642029884836
4.440506905960446
Krugerpark
Parken
51.223313235873135
4.37777043916797
St. Anne's College
Onderwijs
51.24499533193256
4.453874266563792
Bouckenborghpark
Parken
51.2160034579864
4.329083210776239
Cinema Rubens
Hotspots
51.223915984336664
4.392156728112207
Veerdienst "Sint Anna Linkeroever naar Rechteroever
Openbaar vervoer
51.2352953241005
4.4086011715164055
Fiskeskur
Eten & drinken
51.223810134132336
4.404793968500555
KDG Campus Stadswaag
Onderwijs
51.24740726728213
4.449760498909903
Bibliotheek Park
Cultuur
51.215473063338386
4.362379124317001
Wake Up Cable Antwerpen
Cultuur
51.214368425898066
4.393307681990176
WALLS Vastgoedmakelaars
Hotspots
51.20821550255198
4.392507181989791
Sum sum
Eten & drinken
51.263771660351004
4.45716966575846
Fort van Merksem
Parken
51.220655298640004
4.379483411687281
Halewijnlaan
Openbaar vervoer
51.21869617195878
4.482550304762111
GO! Spectrumschool Campus Ruggeveld
Onderwijs
51.21900019104766
4.426791239663716
loes en krikke - colonia
Eten & drinken
51.219327410335964
4.420652310827092
Antwerpen Astrid Metro
Openbaar vervoer
51.18099633425443
4.41332811676476
Middelheimmuseum
Cultuur
51.17120623904268
4.3135108363224735
Openbare Bibliotheek Kruibeke
Cultuur
51.21227924877838
4.414979483846347
Stadspark
Parken
51.21599617422273
4.441900328177046
Bar Leon
Eten & drinken
51.22973857436362
4.392468162128867
Royal Yacht Club of Belgium - Clubhouse
Hotspots
51.23139492567397
4.441176539664416
Antwerps Sportpaleis
Cultuur
51.214398884802534
4.4401111
De Roma
Cultuur
51.21877173184367
4.369167681990417
Antwerp Amusement Center
Cultuur
51.18585795143411
4.407705867812949
Murni Wilrijk
Eten & drinken
51.219256439418196
4.420698827149633
Chinatown
Hotspots
51.203253294761275
4.421589028028869
Groen Kwartier Park
51.2390257611421
4.426620002529513
Street Art viaduct Merksem
Cultuur
51.196232960822854
4.415904581709139
Vin d'Où
Eten & drinken
51.21822317333958
4.409093939663612
Meir
Hotspots
51.1790013886984
4.318506488669483
Kasteel Altena
Hotspots
51.230580598332566
4.408069037403864
Pont-Neuf
Eten & drinken
51.23621265097349
4.387127697337951
Plaasj Kaffee
Eten & drinken
51.173866366321974
4.312554169187071
Park De Kerckhoeck
Parken
51.24032464454902
4.438288618168735
Explorenza
Eten & drinken
51.200877331502504
4.444201988548141
Table d'Ho
Eten & drinken
51.202004443137
4.453486639662634
Stedelijke Basisschool De Vlinderboom
Onderwijs
51.208956329058935
4.429836810826438
Walvis
Eten & drinken
51.20650275115306
4.426565324316465
Dôme sur Mer
Eten & drinken
51.21975300088306
4.434496411640142
Bar Chapel
Eten & drinken
51.183184800801875
4.425535054725124
Patisserie Lebleu
Eten & drinken
51.217375880781944
4.404021270916743
Wilde Zee
Hotspots
51.17317045374174
4.315647827497565
Polder Noord
Eten & drinken
51.250186415035785
4.421309494499023
Bowling Stones
Cultuur
51.22191356482527
4.385288666644125
Bakkerij & Tea Room Den Bezekoek
Eten & drinken
51.21579553706532
4.425463669310929
Vitesse Coffee & Cycling
Hotspots
51.228001456008016
4.436302028681431
Restaurant Veranda
Eten & drinken
51.21059850348284
4.398896916164672
Sumac
Eten & drinken
51.25163042874014
4.432270886519994
Avonturenspeeltuin Distelhoek
Parken
51.160206285884485
4.373460174295076
Skipiste Aspen
Cultuur
51.219895358840546
4.381696445610928
't Genot
Eten & drinken
51.20152801255961
4.464609288159437
Den Exter
Eten & drinken
51.22369602019467
4.44596157302594
Spoor Oost
Openbaar vervoer
51.18850554544084
4.437831490472853
Het Rooi
Eten & drinken
51.198810184158845
4.400637812682136
Hof van Leysen
Parken
51.17098202209629
4.312727720795536
Kruibeke Dorp
Openbaar vervoer
51.17607455311309
4.325422779294889
Kruibeke - veerboot
Openbaar vervoer
51.20787634037815
4.351898703766039
Neuzenbergbos
Parken
51.20764682368781
4.405174843375589
Thomas More Campus Sanderus
Onderwijs
51.228124545994916
4.404998565091606
Roest
Eten & drinken
51.18432603290961
4.40560435074555
Danieli Il Divino
Eten & drinken
51.164397682309136
4.387705104840669
Den Bourgondier
Eten & drinken
51.22397714410085
4.48101338617095
Bakkerij De zwarte Arend
Eten & drinken
51.16919620419316
4.402307154507621
Steytelinck
Parken
51.19559362244129
4.363339812398151
Plein Publiek
Cultuur
51.20215416408483
4.350394767971533
Burcht Kaai
Openbaar vervoer
51.2173850959982
4.421129639663566
Antwerpen Centraal
Openbaar vervoer
51.16894174104325
4.352684558949839
Park Sorghvliedt
Parken
51.20772881655952
4.387674246505666
Zuidpark
Parken
51.231165417355484
4.388845224317938
Koninklijke Tennisclub Linkeroever Antwerpen
Cultuur
51.199899915856676
4.417202400217955
Repasse
Eten & drinken
51.21478007531211
4.406436881319778
Botanische tuin
Parken
Eten & drinken
Parken
Openbaar vervoer
Hotspots
Cultuur
Onderwijs
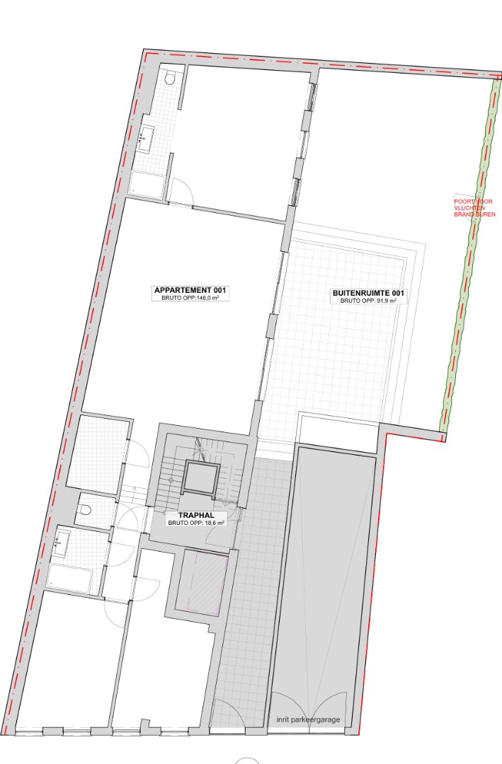
Kenmerken
- Type Appartement
- Prijs€ 699.000
- Bewoonbare oppervlakte 146 m²
- Bebouwde oppervlakte 146 m²
- Grondoppervlakte 459 m²
- Staat Luxe afwerking
- Adres Minderbroedersstraat 15, 2000 Antwerpen
- Beschikbaar vanaf Bij akte
- Type verwarming Elektriciteit
- Raamtype Aluminium
- Opmerkingen beglazing Dubbele beglazing
- Bouwjaar 2024
Lees meer
Comfort
- Slaapkamers 3
- Badkamers 2
- Aantal verdiepingen 3
- Terras Ja
- Tuin Ja
- Oppervlakte tuin 92 m²
Lees meer
Informatieplicht
- Stedenbouwkundige bestemming Woongebied met culturele, historische en/of esthetische waarde
- Stedenbouwkundige vergunning Vergunning uitgereikt
- Dagvaarding en herstelvordering Geen rechterlijke herstelmaatregel of bestuurlijke maatregel opgelegd
- Voorkooprecht Geen voorkooprecht ruimtelijke ordening aanwezig
- Verkavelingsvergunning Geen verkavelingsvergunning
- P-score C
- G-score C
Lees meer
Interesse?
Contacteer ons
Wout Jacobs
Gedelegeerd Bestuurder | Erkend Vastgoedmakelaar
BIV: 508.642
Gerelateerde panden
Vraag snel
jouw bezoek aan.
Contacteer Walls Vastgoedmakelaars voor meer informatie over dit pand.